Bezauberndes, liebevoll gestaltetes Reiheneckhaus

Objektangaben

Baujahr: 2003

Wohnfläche: 118 m²

Grundstücksfläche: 250 m²

Zimmer: 4

Nutzungsart: Wohnen

Vermarktungsart: Kauf

Courtage: 3,48 % Käuferprovision inkl. gesetzl. MwSt.

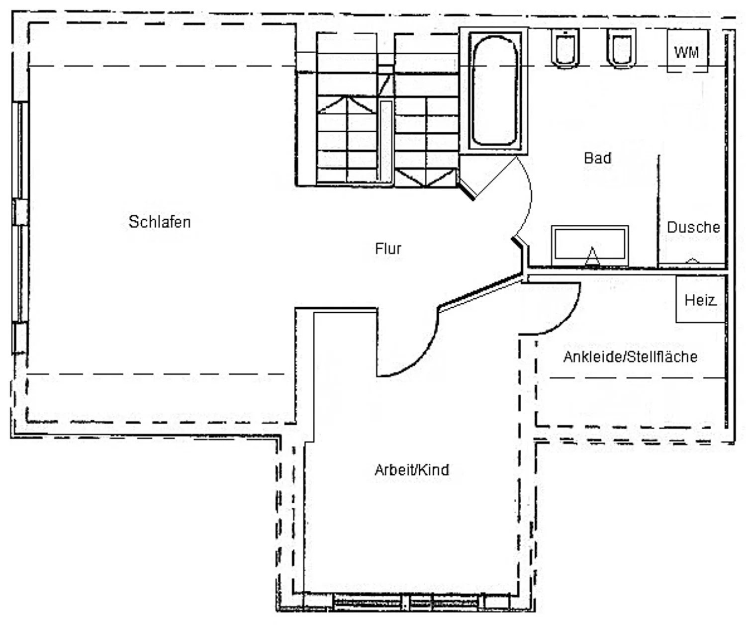
  • Das zauberhafte, exklusive Reihenhaus eines Dreispänners in L-Form (wodurch es eigentlich auch ein Reihen-Eckhaus ist) wurde 2003 in massiver, wohngesunder Bauweise errichtet und 2015 fachmännisch und geschmackvoll renoviert. Die höchstwertige und außergewöhnlich schöne Ausstattung des Hauses ergeben ein stilvolles Wohlfühlklima. Die besonders schönen, sehr großen, weißen MarkenKunststofffenster der Firma Bayerwald geben dem Haus einen hellen, lichtdurchfluteten Charakter. Das gepflegte Gärtchen mit seiner West-Terrasse aus einheimischem Lärchenholz, lädt mit seinen sonnigen und schattigen Plätzchen, Familie und Freunde zum gemeinsamen Verweilen ein. Die Nachbarschaft ist aller bestens, auch Kinder und Tiere sind hier immer stets willkommen. Da das romantische Reihenhaus nicht unterkellert ist, finden Skier, Schlitten, Golfausrüstung usw. in der übergroßen, sehr hohen, massivgemauerten Doppelgarage mit einer möglichen Nutzgalerie enorm viel Staufläche. Die ansprechende Zuwegung zum Haus wurde mit PorphyrSchieferstein-Platten versehen.

  • Diese, am östlichen Ende des Landkreises Landsberg gelegene, sehr sympathische Gemeinde ist ein wahrer Geheimtipp für Pendler, die in beschaulicher Ruhe wohnen und dennoch bequem zur Arbeit gelangen möchten. Hier sind die Voraussetzungen ideal: ob mit der S-Bahn (10 Minuten mit dem Fahrrad oder 3 Minuten mit dem Auto) oder dem Zug direkt nach München, oder dann doch lieber mit dem Auto in ca. 25 Minuten, erreichen Sie die große Metropole. Am Ort sind diverse Einkaufsmöglichkeiten für den täglichen Bedarf, sowie Banken, Ärzte und eine Apotheke vorhanden. Ein großes, neues Einkaufszentrum mit Discounter, Getränke- und Drogeriemarkt befindet sich im gleich benachbarten Kaltenberg (Ritterfestspielort). Es gibt eine Grundschule, 2 Kindergarten sowie in der nahen Umgebung weiterführende Schulen, Realschule und Gymnasien liegen. Der historische Dorfkern mit der schönen Barock-Kirche und dem Landgasthof „Alter Wirt“ (mit Biergarten unter großen Kastanien) ist in 3 Gehmintuen zu erreichen, ein Badesee ist nur 10 Autominuten entfernt. Die besondere, liebevolle “Siedlung“ trennt lediglich eine Spielstraße von Feldern und Wiesen. Hier können Jogger, Gassigeher und Kinder ungeniert und gefahrlos ihren Lieblingsbeschäftigungen nachgehen und sich völlig frei fühlen.

    Entfernungen:

    • Ammersee ca. 25 min.

    • Landsberg am Lech ca. 20 min.

    • München ca. 25 min.

    • Augsburg ca. 30 min.

Zurück
Zurück

Lichtdurchflutete, teil. renovierungsbedürftige 3-Zimmer-Traum Dachterrassenwohnung

Weiter
Weiter

Haus-im-Haus | Sonnenverwöhnte 4-Zimmer-Wohnung auf drei Ebenen